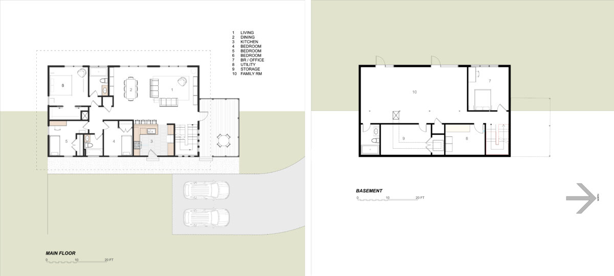
This single-story design takes advantage of a magnificent sloping site that is accessed by a new bridge over a stream bordering the property. The young family are collectors of antique fixtures and accessories and find the open-plan and shed roof the perfect design to incorporate the mountain views into everyday life.
Project
Vermont Modern
Worcester, VT